Learning from the Jewellery Quarter
Moss House is a new red-brick focal point for University College Birmingham, reinforcing the urban character of the city’s historic Jewellery Quarter and providing a street presence for vocational education in the city.
 
            
                    A legacy of craft
Emerging in the 18th century with Birmingham’s extraordinary rise as an industrial powerhouse, today the Jewellery Quarter is a conservation area and remains a major centre of UK goldsmiths—a close-knit street pattern housing a community of family businesses. Moss House adds to the story through a contemporary reflection of the proportions, detailing and displays of artisanal skill that define the area’s historically important buildings including Birmingham Assay Office (1773), Argent Centre (1863), Taylor & Challen buildings (1912) and Birmingham School of Jewellery (1890).
University College Birmingham wanted a new building that would showcase their role as a leading provider of high quality, apprenticeship-based vocational education. Top of their agenda was to create an open and inclusive teaching environment to suit a range of learning modes while connecting students and staff in enjoyable shared spaces designed to encourage serendipitous encounter.
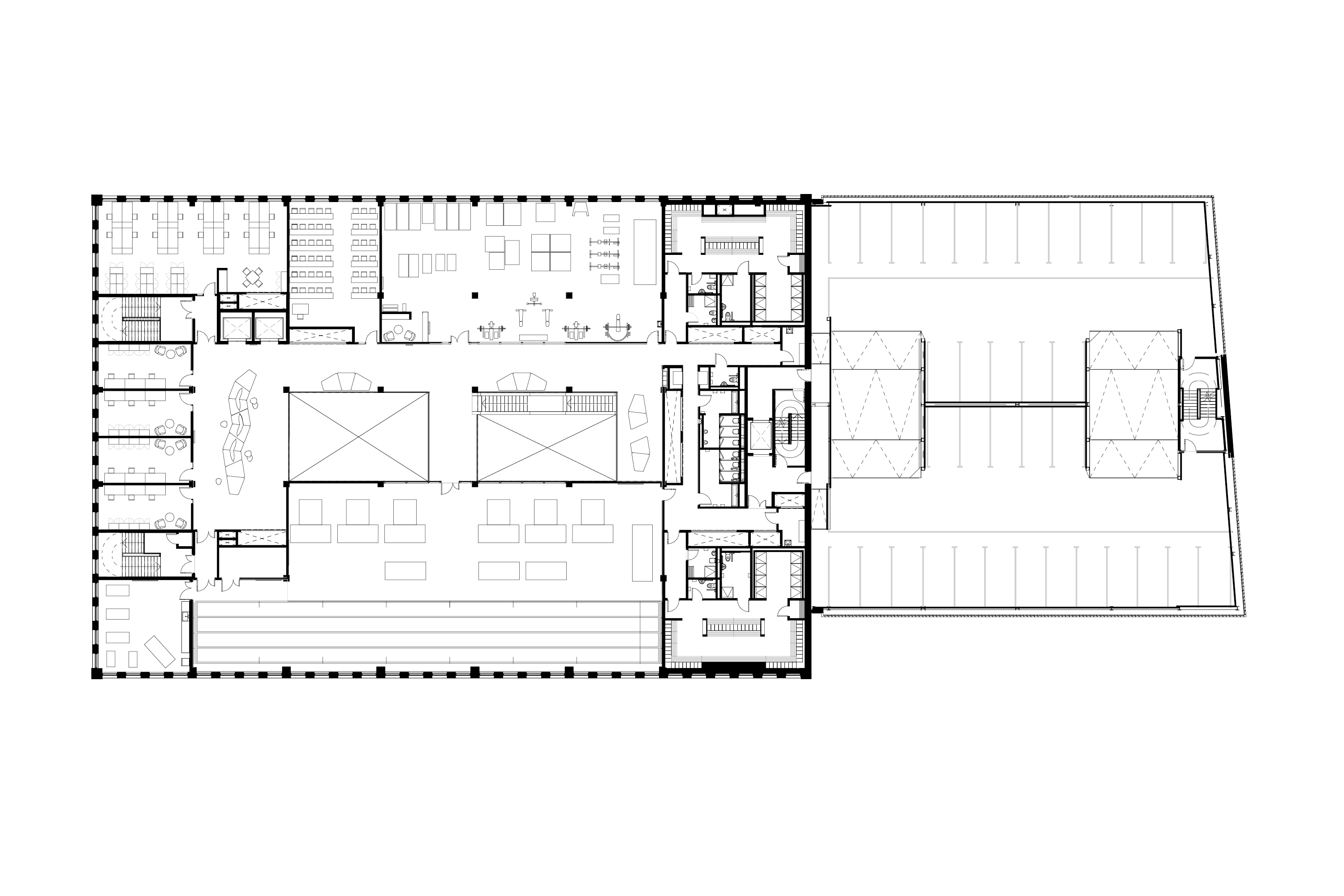
Fluid connectivity drives the organisation of the building. A top-lit central atrium flooded with natural light celebrates a processional timber staircase—clearly communicating the building’s logical circulation and sequence of friendly, informal break-out spaces.
 
            
                    Enhancing quality of place
Externally, our building’s legible rhythm is articulated in a finely crafted palette of brick, terracotta, metal, glass and masonry. Reinforcing the existing urban grain, the prominent corner site is robustly defined in new architecture that reflects the proportions and materiality of its locality. In a continuation of a conversation begun by earlier generations of the Quarter’s architecture, Moss House employs a language of finely crafted terracotta detailing to emphasise window openings and entrances.
Internally, durable and hardworking spaces reflect a robust and honest materiality of exposed concrete columns, steel and glass. As well as a range of teaching settings, the building provides three lecture theatres, a gym, an American-style diner and a 35-metre indoor running track.
Time and the city
Moss House is the second phase in the development of University College Birmingham’s new campus and is part of the University’s strategic £100 million capital expansion. As well as anticipating the future growth of the University, the scheme responds to simultaneous city development including Paradise, which introduces a new scale of architecture to the vicinity. Most importantly, Moss House provides world-class education facilities to enrich Birmingham’s knowledge economy and boost training and employment opportunities for generations of young people to come.
“Moss House will play huge part in preparing our students for their placements and future careers. It is a fantastic building that is an asset to the fabric of the Jewellery Quarter.”
Michael Harkin, Vice-chancellor and Principal, University College Birmingham
 
            
                    | Client | University College Birmingham | |||||
|---|---|---|---|---|---|---|
| Location | Jewellery Quarter, Birmingham | |||||
| Size | 13,180 sq m | |||||
| Status | Completed 2020 | |||||
| Awards | RIBA National Award 2021, RIBA Regional Award 2021 | |||||
| Team |   |   |   |   |   |   | 
 
            
                     
            
                     
            
                     
            
                     
            
                     
            
                     
            
                     
            
                     
            
                     
            
                     
            
                     
            
                     
            
                    